IHY型節能耐腐蝕不銹鋼液下泵結構圖
時間:2014-12-25 來源:揚子江泵業 瀏覽數:1313
IHY型化工液下泵是吸收國外先進技術,由本公司開發研制的新產品,其性能參數符合IS02858、GB5662標準。具有高效節能、結構新穎、運行平穩、噪聲小、使用耐久等特點。同時本型泵的軸承和被輸送介質不接觸(液下部分不設置軸承),因此可以輸送含有固體顆粒的有腐蝕性介質。本泵廣泛用于石油化工、化肥、造紙、冶金、氯堿、洗滌劑等部門,是Fy型泵的一種更新換代產品。
性能范圍:
流量Q:~1600m3/h 揚程H:2.5~125m 溫度T:-20℃~350℃,性能參數與IHJ相同。
結構:
IHY液下泵是立式單級液下泵,用圓柱管聯接水力部件和底座,排出管同圓柱管分開,不采用軸封措施(如需密封可采用密封裝置),葉輪為閉式和開式兩種結構。適合輸送含有固體顆粒和易結晶的介質,泵液下深度可在~之間變化,如超過時可加液下接管。
泵接觸介質的零件材料:
泵接觸介質的材料有:0Cr18Ni9Ti 1Cr18Ni9Ti 0Cr18Ni12M2Ti 1Cr1Ni17M02Ti 304L 316L CD4MCu 蒙乃爾合金等,如用戶需其它材質可與本公司協商。
配套動力及轉向:
配套采用Y2型普通電機和YB型防爆電機,泵的轉向為從驅動端看泵,順時針方向旋轉。
IHY型系列化工離心液下泵,葉輪型式分閉式、半開式全開式供用戶任選,當液下深度超過2米時可采用接軸結構,液下深度可達6米。
特點:
接軸結構安全可靠;
轉子部分兩點支承,無軸向串動;
中間導軸承可采用自潤滑或外潤滑;
泵起動時,葉輪已浸沒在介質中,起動容易,不存在排氣、抽空問題;
泵用于深井時,可加裝一根吸入管。
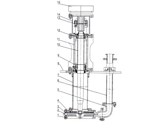
IHY型節能耐腐蝕不銹鋼液下泵結構圖

1、前蓋 2、泵體 3、葉輪 4、出水彎頭 5、排液管 7、聯接管 8、固定盤 9、軸承 10、軸 11、軸承體 12、軸承 13、聯軸器部件 14、電機架 15、電動機
IHY型節能耐腐蝕不銹鋼液下泵參數
|
型號
|
泵額定轉速n=2900r/min
|
泵額定轉速n=1450r/min
|
||||||||
|
流量 Q (m3/h)
|
揚程 H (m)
|
軸功率 N (kw)
|
液體比重 r=1.00
|
流量 Q (m3/h)
|
揚程 H (m)
|
軸功率 N (kw)
|
液體比重 r=1.00
|
|||
|
功率 (kw)
|
配用電機型
|
功率
(kw) |
配用電機型
|
|||||||
|
IHY25-20-130
|
3.6
|
25
|
0.91
|
2.2
|
Y90L-2
|
|
|
|
|
|
|
IHY25-20-130A
|
3.6
|
16
|
0.42
|
1.5
|
Y90S-2
|
|
|
|
|
|
|
IHY25-20-180
|
3.6
|
40
|
2.24
|
3
|
Y100L-2
|
|
|
|
|
|
|
IHY40-32-120
|
7.2
|
20
|
0.91
|
3
|
Y100L-2
|
|
|
|
|
|
|
IHY40-32-120A
|
7.2
|
16
|
0.61
|
2.2
|
Y90L-2
|
|
|
|
|
|
|
IHY40-25-145
|
7.2
|
25
|
1.14
|
3
|
Y100L-2
|
|
|
|
|
|
|
IHY40-32-180
|
7.2
|
40
|
2.24
|
4
|
Y112M-2
|
|
|
|
|
|
|
IHY50-32-125
|
12.5
|
20
|
1.33
|
2.2
|
Y90L-2
|
6.3
|
5
|
0.19
|
0.55
|
Y801-4
|
|
IHY50-32-125A
|
11.3
|
16.4
|
0.99
|
1.5
|
Y90S-2
|
5.7
|
4.1
|
1.149
|
0.55
|
Y801-4
|
|
IHY50-32-160
|
12.5
|
32
|
2.37
|
3
|
Y100L-2
|
6.3
|
8
|
0.34
|
0.55
|
Y801-4
|
|
IHY50-32-160A
|
11.3
|
26.4
|
1.85
|
3
|
Y100L-2
|
5.7
|
6.6
|
0.28
|
0.55
|
Y801-4
|
|
IHY50-32-200
|
12.5
|
50
|
4.36
|
5.5
|
Y132S1-2
|
6.3
|
12.5
|
0.65
|
1.1
|
Y90S-4
|
|
IHY50-32-200A
|
11.3
|
41
|
3.24
|
5.5
|
Y132S1-2
|
5.7
|
10.3
|
0.52
|
1.1
|
Y90S-4
|
|
IHY50-32-250
|
12.5
|
80
|
8.25
|
11
|
Y160M1-2
|
6.3
|
20
|
1.27
|
2.2
|
Y100L1-4
|
|
IHY50-32-250A
|
11.7
|
70
|
6.97
|
11
|
Y160M1-2
|
5.8
|
17.5
|
1.125
|
1.5
|
Y90L-4
|
|
IHY50-32-250B
|
11
|
62
|
6.19
|
7.5
|
Y132S2-2
|
5.5
|
15.58
|
0.77
|
1.1
|
Y90S-4
|
|
IHY65-50-125
|
25
|
20
|
2.2
|
3
|
Y100L-2
|
12.5
|
5
|
0.31
|
0.55
|
Y801-4
|
|
IHY65-50-125A
|
22.7
|
16.5
|
1.67
|
2.2
|
Y90L-2
|
11.4
|
4.1
|
0.21
|
0.55
|
Y801-4
|
|
IHY65-50-160
|
25
|
32
|
3.82
|
5.5
|
Y132S1-2
|
12.5
|
8
|
0.53
|
1.1
|
Y90S-4
|
|
IHY65-50-160A
|
22.7
|
26.5
|
2.92
|
4
|
Y112M-2
|
11.3
|
6.6
|
0.41
|
0.75
|
Y802-4
|
|
IHY65-40-200
|
25
|
50
|
6.55
|
11
|
Y160M1-2
|
12.5
|
12.5
|
0.93
|
1.5
|
Y90L-4
|
|
IHY65-40-200A
|
22.7
|
41
|
5.07
|
7.5
|
Y132S2-2
|
11.3
|
10.3
|
0.72
|
1.1
|
Y90S-4
|
|
IHY65-40-250
|
25
|
80
|
11.84
|
15
|
Y160M2-2
|
12.5
|
20.0
|
1.75
|
3
|
Y100L2-4
|
|
IHY65-40-250A
|
23.4
|
74.8
|
10.06
|
15
|
Y160M2-2
|
11.7
|
17.5
|
1.47
|
2.2
|
Y100L1-4
|
|
IHY65-40-250B
|
22
|
61.8
|
8.42
|
11
|
Y160M1-2
|
|
|
|
|
|
|
IHY65-40-315
|
25
|
125
|
21.8
|
30
|
Y200L1-2
|
12.5
|
32
|
3.3
|
5.5
|
Y132S-4
|
|
IHY65-40-315
|
23.4
|
109.5
|
18.36
|
30
|
Y200L1-2
|
11.7
|
28
|
2.88
|
4
|
Y112M-4
|
|
IHY80-65-125
|
50
|
20
|
3.95
|
5.5
|
Y132S1-2
|
25
|
5.0
|
0.53
|
0.75
|
Y802-4
|
|
IHY80-65-125A
|
45.3
|
16.5
|
3.04
|
4
|
Y112M-2
|
22.6
|
4.1
|
0.41
|
1.1
|
Y90S-4
|
|
IHY80-65-160
|
50
|
26.4
|
6.5
|
11
|
Y160M1-2
|
25
|
8
|
0.88
|
1.5
|
Y90L-4
|
|
IHY80-65-160A
|
45.4
|
50
|
5.02
|
7.5
|
Y132S2-2
|
22.7
|
6.6
|
0.68
|
1.1
|
Y90S-4
|
|
IHY80-50-200
|
50
|
41
|
10.8
|
15
|
Y160M2-2
|
25
|
12.5
|
1.49
|
2.2
|
Y100L1-4
|
|
IHY80-50-200A
|
45.3
|
80
|
8.29
|
11
|
Y160M1-2
|
22.7
|
10.3
|
1.135
|
1.5
|
Y90L-4
|
|
IHY80-50-250
|
50
|
70.2
|
20.6
|
30
|
Y200L1-2
|
25
|
20
|
2.43
|
4
|
Y112M-4
|
|
IHY80-50-250A
|
45.9
|
30.2
|
17.6
|
22
|
Y180M-2
|
23.4
|
17.6
|
2.25
|
4
|
Y112M-4
|
|
IHY80-50-250B
|
44
|
125
|
13.8
|
18.5
|
Y160L-2
|
|
|
|
|
|
|
IHY80-50-315
|
50
|
110
|
32.8
|
45
|
Y225M-2
|
25
|
32
|
4.74
|
7.5
|
Y132M-4
|
|
IHY80-50-315A
|
46.9
|
|
28.1
|
37
|
Y200L2-2
|
23.5
|
28.3
|
4.22
|
5.5
|
Y132S-4
|
|
IHY100-80-125
|
100
|
20
|
7.47
|
1
|
Y160M1-2
|
50
|
5
|
1.0
|
1.5
|
Y90L-4
|
|
IHY100-80-125A
|
91.8
|
16.8
|
5.92
|
7.5
|
Y132S2-2
|
45.8
|
4.2
|
0.79
|
1.1
|
Y90S-4
|
|
IHY100-80-160
|
100
|
32
|
11.9
|
15
|
Y160M2-2
|
50
|
8
|
1.58
|
2.2
|
Y100L1-4
|
|
IHY100-80-160A
|
91
|
26.5
|
9.25
|
15
|
Y160M2-2
|
45.5
|
6.6
|
1.22
|
2.2
|
Y100L1-4
|
|
IHY100-65-200
|
100
|
50
|
18.9
|
22
|
Y180M-2
|
50
|
12.5
|
2.5
|
3
|
Y100L2-4
|
|
IHY100-65-200A
|
91
|
41.5
|
14.7
|
18.5
|
Y160L-2
|
45.5
|
10.3
|
1.93
|
3
|
Y100L2-4
|
|
IHY100-65-250
|
100
|
80
|
32
|
45
|
Y225M-2
|
50
|
20
|
4.3
|
5.5
|
Y132S-4
|
|
IHY100-65-200A
|
93.5
|
70
|
27.4
|
37
|
Y200L2-2
|
46.7
|
17.4
|
3.53
|
5.5
|
Y132S-4
|
|
IHY100-65-200B
|
87.8
|
61.7
|
23.1
|
30
|
Y200L1-2
|
|
|
|
|
|
|
IHY100-65-315
|
|
|
|
|
|
50
|
32
|
7.5
|
11
|
Y160M-4
|
|
IHY100-65-315A
|
|
|
|
|
|
46.5
|
28
|
6.33
|
11
|
Y160M-4
|
|
IHY100-65-315B
|
|
|
|
|
|
44
|
22.2
|
4.85
|
7.5
|
Y132M-4
|
|
IHY125-100-200
|
200
|
50
|
35.4
|
45
|
Y225M-2
|
400
|
12.5
|
4.66
|
7.5
|
Y132M-4
|
|
IHY125-100-200A
|
182
|
41.4
|
27.4
|
37
|
Y200L1-2
|
91
|
10.3
|
3.6
|
5.5
|
Y132S-4
|
|
IHY125-100-250
|
|
|
|
|
|
100
|
20
|
7.56
|
11
|
Y160M-4
|
|
IHY125-100-250A
|
|
|
|
|
|
93
|
17.4
|
6.29
|
11
|
Y160M-4
|
|
IHY125-100-315
|
|
|
|
|
|
100
|
32
|
14.1
|
18.5
|
Y180M-4
|
|
IHY125-100-315A
|
|
|
|
|
|
94
|
28.3
|
12.1
|
15
|
Y160L-4
|
|
IHY125-100-400
|
|
|
|
|
|
100
|
50
|
24.8
|
30
|
Y200L-4
|
|
IHY125-100-400A
|
|
|
|
|
|
91
|
41
|
19
|
30
|
Y200L-4
|
|
IHY150-125-250
|
|
|
|
|
|
200
|
20
|
14.1
|
18.5
|
Y180M-4
|
|
IHY150-125-250A
|
|
|
|
|
|
182
|
16.5
|
10.9
|
15
|
Y160L-4
|
|
IHY150-125-315
|
|
|
|
|
|
200
|
32
|
23.2
|
30
|
Y200L-4
|
|
IHY150-125-315A
|
|
|
|
|
|
182
|
26.4
|
17.94
|
22
|
Y180L-4
|
|
IHY150-125-400
|
|
|
|
|
|
20
|
50
|
38.9
|
55
|
Y250M-4
|
|
IHY150-125-400A
|
|
|
|
|
|
182
|
741
|
29.9
|
37
|
Y225S-4
|
|
IHY200-125-250
|
|
|
|
|
|
400
|
20
|
27.3
|
37
|
Y225S-4
|
|
IHY200-125-250A
|
|
|
|
|
|
363
|
16.6
|
21.1
|
30
|
Y200L-4
|
|
IHY200-150-315
|
|
|
|
|
|
400
|
32
|
44.4
|
55
|
Y250M-4
|
|
IHY200-150-315A
|
|
|
|
|
|
363
|
26.4
|
33.9
|
45
|
Y225M-4
|
|
IHY200-150-400
|
|
|
|
|
|
400
|
50
|
69.8
|
90
|
Y280M-4
|
|
IHY200-150-400A
|
|
|
|
|
|
363
|
41
|
53.5
|
75
|
Y280S-4
|
|
IHY250-200-315
|
|
|
|
|
|
624
|
22
|
55.8
|
75
|
Y280S-4
|
|
IHY250-200-315A
|
|
|
|
|
|
600
|
20
|
47.8
|
55
|
Y250M-4
|
|
IHY250-200-315B
|
|
|
|
|
|
550
|
16
|
34
|
37
|
Y225S-4
|
感謝您訪問我們揚子江泵業的網站m.bodabiopharm.cn,如有任何水泵疑問我們一定會盡心盡力為您提供優質的服務。





