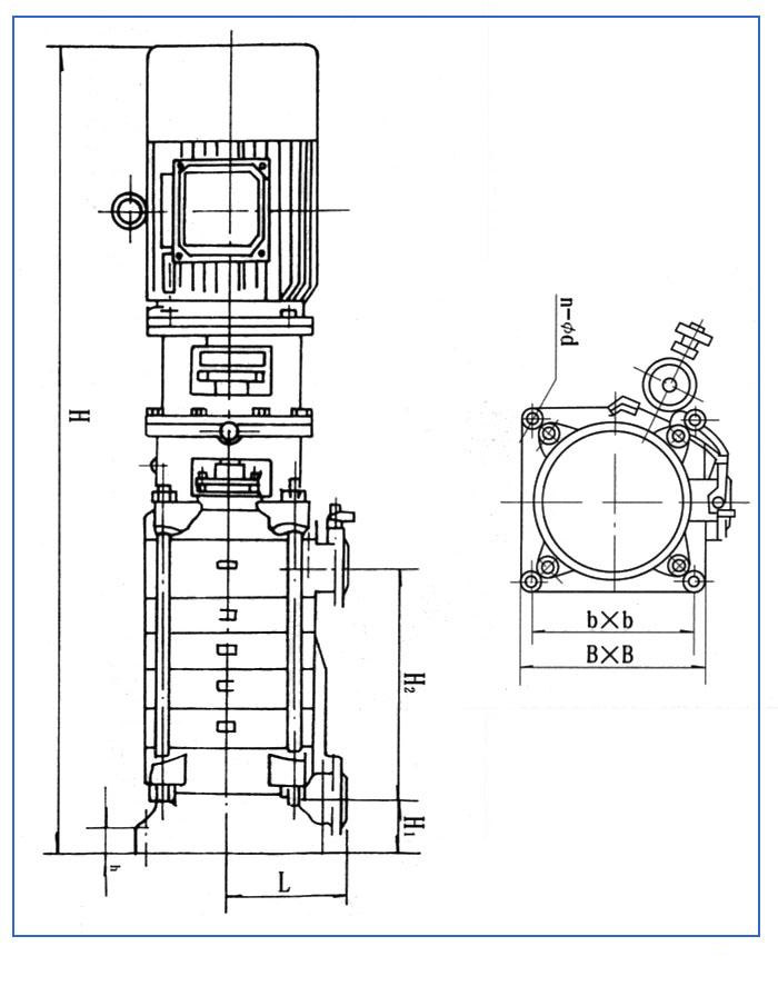
DL型立式清水多級泵結構圖
時間:2013-2-27 來源:揚子江泵業 瀏覽數:649
DL型多級離心泵是采用國家推薦使用的高效節能產品IS型泵的水力模型,為立式多級多節段式結構。螺桿把進水段、中段、出水段夾緊聯成一體。水泵每一級裝一個葉輪、一個導水葉。軸向力采用水力平衡法解決,殘余軸向力由球軸軸承承受,用油脂潤滑。軸封采用軟填料或機械密封。產品執行JB/T2727-93《立式多級離心泵型式與基本參數》標準,主要供吸送稀釋的、清潔的、不腐蝕的、不爆炸的清水及物理化學性質類似水的不含固體顆粒或纖維的液體。
本司產品全部采用計算機設計和優化處理,公司擁有雄厚的技術力量、豐富的生產經驗和完善的檢測手段,從而保證產品質量的穩定可靠。
二、 DL型多級離心泵適用范圍:
DL型多級離心泵廣泛應用于高層建筑的消防、生活供水以及空調機組循環、冷卻水輸送。
三、 產品特點:
1、水力模型先進:效率高,性能范圍廣。
2、結構新穎,運行可靠:取消了平衡鼓,其軸向力采用水力平衡,徹底解決了平衡鼓易銹蝕、易咬死、易磨損的問題,保證了運行更加可靠。
3、更少的運行、維修費用:采用優質機械密封,耐磨損、無泄漏、使用壽命長,故障率低,具有更少的運行維修費用。
4、運行平穩,噪音低:采用低轉速電機,使泵運行平穩,噪音更低。
5、立式結構,占地面積小。
四、技術參數:
流量:4.2-504m3/h;
揚程:24-240m;
功率:1.5-450kw;
轉速:1480r/min;
口徑:φ40-φ250;
溫度范圍:0-+90℃;
工作壓力:≤2.4Mpa。
五、型號意義:
DL系列立式多級離心泵(結構圖)
| DL型立式多級離心泵 | ||||||||||
| 型 號 | 級 數 | 流 量(m3/h) | 流 量(L/S) | 揚 程 (m) |
轉 速 |
軸功率(kw) | 電機功率(kw) | 效 率 (%) |
吸 程 (m) |
汽蝕余量 (m) |
| 40DL | 2 | 6.2 | 1.72 | 23.6 | 1450 | 0.92 | 1.5 | 40 | 7 | 3.19 |
| 3 | 6.2 | 1.72 | 35.4 | 1.38 | 2.2 | 40 | 7 | 3.19 | ||
| 4 | 6.2 | 1.72 | 47.2 | 1.84 | 3 | 40 | 7 | 3.19 | ||
| 5 | 6.2 | 1.72 | 59 | 2.30 | 4 | 40 | 7 | 3.19 | ||
| 6 | 6.2 | 1.72 | 70.8 | 2.75 | 4 | 40 | 7 | 3.19 | ||
| 7 | 6.2 | 1.72 | 82.6 | 3.22 | 5.5 | 40 | 7 | 3.19 | ||
| 8 | 6.2 | 1.72 | 94.4 | 3.68 | 5.5 | 40 | 7 | 3.19 | ||
| 9 | 6.2 | 1.72 | 106.2 | 4.14 | 7.5 | 40 | 7 | 3.19 | ||
| 10 | 6.2 | 1.72 | 118 | 4.60 | 7.5 | 40 | 7 | 3.19 | ||
| 11 | 6.2 | 1.72 | 129.8 | 5.06 | 7.5 | 40 | 7 | 3.19 | ||
| 12 | 6.2 | 1.72 | 141.6 | 5.52 | 11 | 40 | 7 | 3.19 | ||
| 50DL | 2 | 12.6 | 3.5 | 24.4 | 1450 | 1.55 | 3 | 54 | 7.6 | 2.66 |
| 3 | 12.6 | 3.5 | 36.6 | 2.33 | 3 | 54 | 7.6 | 2.66 | ||
| 4 | 12.6 | 3.5 | 48.8 | 3.10 | 4 | 54 | 7.6 | 2.66 | ||
| 5 | 12.6 | 3.5 | 61 | 3.88 | 5.5 | 54 | 7.6 | 2.66 | ||
| 6 | 12.6 | 3.5 | 73.2 | 4.65 | 5.5 | 54 | 7.6 | 2.66 | ||
| 7 | 12.6 | 3.5 | 85.4 | 5.43 | 7.5 | 54 | 7.6 | 2.66 | ||
| 8 | 12.6 | 3.5 | 97.6 | 6.20 | 7.5 | 54 | 7.6 | 2.66 | ||
| 9 | 12.6 | 3.5 | 109.8 | 6.98 | 11 | 54 | 7.6 | 2.66 | ||
| 10 | 12.6 | 3.5 | 122 | 7.75 | 11 | 54 | 7.6 | 2.66 | ||
| 65DL | 2 | 30 | 8.33 | 32 | 1450 | 4.22 | 5.5 | 62 | 7.6 | 2.82 |
| 3 | 30 | 8.33 | 48 | 6.33 | 7.5 | 62 | 7.6 | 2.82 | ||
| 4 | 30 | 8.33 | 64 | 8.44 | 11 | 62 | 7.6 | 2.82 | ||
| 5 | 30 | 8.33 | 80 | 10.55 | 15 | 62 | 7.6 | 2.82 | ||
| 6 | 30 | 8.33 | 96 | 12.66 | 15 | 62 | 7.6 | 2.82 | ||
| 7 | 30 | 8.33 | 112 | 14.77 | 18.5 | 62 | 7.6 | 2.82 | ||
| 8 | 30 | 8.33 | 128 | 16.88 | 22 | 62 | 7.6 | 2.82 | ||
| 9 | 30 | 8.33 | 144 | 18.99 | 22 | 62 | 7.6 | 2.82 | ||
| 10 | 30 | 8.33 | 160 | 21.1 | 30 | 62 | 7.6 | 2.82 | ||
| 80DL | 2 | 50.4 | 14 | 40 | 1450 | 7.84 | 11 | 70 | 7.8 | 22.49 |
| 3 | 50.4 | 14 | 60 | 11.76 | 15 | 70 | 7.8 | 2.49 | ||
| 4 | 50.4 | 14 | 80 | 15.68 | 22 | 70 | 7.8 | 2.49 | ||
| 5 | 50.4 | 14 | 100 | 19.60 | 30 | 70 | 7.8 | 2.49 | ||
| 6 | 50.4 | 14 | 120 | 23.52 | 30 | 70 | 7.8 | 2.49 | ||
| 7 | 50.4 | 14 | 140 | 27.44 | 37 | 70 | 7.8 | 2.49 | ||
| 8 | 50.4 | 14 | 160 | 31.36 | 45 | 70 | 7.8 | 2.49 | ||
| 9 | 50.4 | 14 | 180 | 35.28 | 45 | 70 | 7.8 | 2.49 | ||
| 10 | 50.4 | 14 | 200 | 39.20 | 55 | 70 | 7.8 | 2.49 | ||
|
100DL -72-20 |
2 | 72 | 20 | 40 | 1450 | 10.9 | 15 | 72 | 8 | 2.8 |
| 3 | 72 | 20 | 60 | 10.9 | 18.5 | 72 | 8 | 2.8 | ||
| 4 | 72 | 20 | 80 | 10.9 | 30 | 72 | 8 | 2.8 | ||
| 5 | 72 | 20 | 100 | 10.9 | 37 | 72 | 8 | 2.8 | ||
| 6 | 72 | 20 | 120 | 10.9 | 37 | 72 | 8 | 2.8 | ||
| 7 | 72 | 20 | 140 | 10.9 | 45 | 72 | 8 | 2.8 | ||
| 8 | 72 | 20 | 160 | 10.9 | 55 | 72 | 8 | 2.8 | ||
| 9 | 72 | 20 | 180 | 10.9 | 55 | 72 | 8 | 2.8 | ||
| 10 | 72 | 20 | 200 | 54.4 | 70 | 72 | 8 | 2.8 | ||
|
100DL- 100-20 |
2 | 100 | 27.8 | 40 | 1450 | 15.14 | 18.5 | 72 | 7.2 | 3.53 |
| 3 | 100 | 27.8 | 60 | 22.72 | 30 | 72 | 7.2 | 3.53 | ||
| 4 | 100 | 27.8 | 80 | 30.28 | 37 | 72 | 7.2 | 3.53 | ||
| 5 | 100 | 27.8 | 100 | 37.86 | 45 | 72 | 7.2 | 3.53 | ||
| 6 | 100 | 27.8 | 120 | 45.39 | 55 | 72 | 7.2 | 3.53 | ||
| 7 | 100 | 27.8 | 140 | 53.0 | 75 | 72 | 7.2 | 3.53 | ||
| 8 | 100 | 27.8 | 160 | 60.57 | 75 | 72 | 7.2 | 3.53 | ||
| 9 | 100 | 27.8 | 180 | 68.14 | 90 | 72 | 7.2 | 3.53 | ||
| 10 | 100 | 27.8 | 200 | 75.71 | 90 | 72 | 7.2 | 3.53 | ||
|
150DL- 150-20 |
2 | 150 | 27.8 | 40 | 1450 | 20.42 | 30 | 80 | 5.7 | 2.8 |
| 3 | 150 | 27.8 | 60 | 30.63 | 37 | 80 | 5.7 | 2.8 | ||
| 4 | 150 | 27.8 | 80 | 40.84 | 45 | 80 | 5.7 | 2.8 | ||
| 5 | 150 | 27.8 | 100 | 51.05 | 55 | 80 | 5.7 | 2.8 | ||
| 6 | 150 | 27.8 | 120 | 61.26 | 75 | 80 | 5.7 | 2.8 | ||
| 7 | 150 | 27.8 | 140 | 74.47 | 75 | 80 | 5.7 | 2.8 | ||
| 8 | 150 | 27.8 | 160 | 81.68 | 90 | 80 | 5.7 | 2.8 | ||
|
200DL- 280-30 |
2 | 280 | 41.6 | 60 | 1450 | 55.79 | 90 | 84 | 6.0 | 3.7 |
| 3 | 280 | 41.6 | 90 | 83.69 | 110 | 84 | 6.0 | 3.7 | ||
| 4 | 280 | 41.6 | 120 | 111.57 | 132 | 84 | 6.0 | 3.7 | ||
| 5 | 280 | 41.6 | 150 | 139.47 | 160 | 84 | 6.0 | 3.7 | ||
| 6 | 280 | 41.6 | 180 | 163.38 | 200 | 84 | 6.0 | 3.7 | ||




感謝您訪問我們揚子江泵業的網站m.bodabiopharm.cn,如有任何水泵疑問我們一定會盡心盡力為您提供優質的服務.
- 下一篇:QJ型潛水深井泵結構圖
- 上一篇:ZX型自吸離心泵(自吸清水泵)結構圖





